Hidraulinis skirstytuvas 5s 80l 5xa1 badestnost
    • Hidraulinis skirstytuvas 5s 80l 5xa1 badestnost
    • Hidraulinis skirstytuvas 5s 80l 5xa1 badestnost
    • Hidraulinis skirstytuvas 5s 80l 5xa1 badestnost
    • Hidraulinis skirstytuvas 5s 80l 5xa1 badestnost
    • Hidraulinis skirstytuvas 5s 80l 5xa1 badestnost

    Hidraulinis skirstytuvas 5s 80l 5xa1 badestnost

    15014329301707
    452,64 €
    Su mokesčiais
    pristatymas per 5-9 darbo dienas
    Kiekis

    Aprašymas
    SEKCIJŲ HIDRAULINIS PLASTYTUVAS P80 Gamyba:

    Originalus prekės ženklo Badestnost Bulgaria gaminys, gamintojo simbolis: 05P80 5xA1 GKZ1, simbolis: 1.10.10.050

    Taikymas:

    Plačiai naudojamas hidraulinėse sistemose žemės ūkyje, sodininkystėje, miškininkystėje, statybos pramonėje .

    Platintojas pritaikytas įvairių tipų mašinoms, tokioms kaip: žemės ūkio technikos, traktoriai, purkštuvai, toureriai, ciklopai, HDS krautuvai, statybinės mašinos, krautuvai, ekskavatoriai, šlavimo mašinos, pramoninės mašinos ir kiti hidrauliškai valdomi įrenginiai.

    Techniniai duomenys:

    Rekomenduojama alyvos srautas sistemoje : 0 - 80 l/min. Valdymo pavyzdys: penkios dvigubo veikimo pavaros.

    Galimybė nuosekliai prijungti prie esamos sistemos (reikalinga slėgio įvorė).

    Valdymas:

    Visos svirtys yra trijų padėčių (1 - 0 - 2), spyruoklinės, t. y. jos grįžta į vertikalios savaime:

    Padėtis 0 neutrali (svirtis nustatyta vertikaliai), pavaros stūmoklio strypas stovi - alyva eina į perpildymą.

    1 darbo padėtis (svirtis nustatyta į priekį įstrižai), pavaros stūmoklio strypas išsitraukia.

    2 darbo padėtis (svirtis nustatyta įstrižai į galą), pavaros stūmoklio strypas atsitraukia.

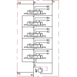
    Dešinėje pusėje siūlomo skirstytuvo hidraulinė schema:

    Prijungimas:

    Maitinimas iš siurblio (P1, P2): BSP 1/2''

    vidinis sriegis Grįžti į baką (T1, T2): BSP 3/4''

    vidinis sriegis Sekcijos (A1, A2, A3, A4, A5, B1, B2, B3, B4, B5): BSP 1/2'' vidinis sriegis

    Serijinė jungtis (N): BSP 3/4'

    vidinis sriegis Slėgio diapazonas:

    Maksimalus tiekimo slėgis: 250 barų Maksimalus grįžtamasis slėgis: 50 Bar

    Maksimalus slėgis sekcijose: 300 Bar

    Prieš pradedant, rekomenduojama patikrinti ir nustatyti tinkamą slėgį Galimybė savarankiškai reguliuotis, visiškai pakeisti posūkį 30 Bar AGRICOLA rekomenduojamos alyvos rūšys:

    Skiedesnis, kokybiškas aliejus: LOTOS AGROL BOXOL 26

    Tirštesnė aukštos kokybės alyva: FUCHS AGROFARM HYDRATEC HVI 46

    Rekomenduojamas alyvos temperatūros diapazonas:

    Leidžiama aplinkos temperatūra: -40 C iki +60 C

    Leidžiama alyvos temperatūra: -15 C iki +80 C

    Perpildymo vožtuvo atsidarymo slėgis didėja proporcingai didėjant srautui:

    180 barų esant 20 l/min.

    190 barų esant 40 l/min.

    200 barų esant 60 l/min.

    210 barų esant 80 l/min. tikslų slėgio matavimą rasite skyriuje Manometrai – matavimo rinkiniai

    Prekė detaliau
    15014329301707
    Nauja

    Charakteristikos

    Gamintojas
    Badestnost
    Detalės numeris
    A1.10.10.050