Hidraulinis skirstytuvas 6 s p80 a1a1a1a1a1a1gkz1
    • Hidraulinis skirstytuvas 6 s p80 a1a1a1a1a1a1gkz1
    • Hidraulinis skirstytuvas 6 s p80 a1a1a1a1a1a1gkz1
    • Hidraulinis skirstytuvas 6 s p80 a1a1a1a1a1a1gkz1
    • Hidraulinis skirstytuvas 6 s p80 a1a1a1a1a1a1gkz1

    Hidraulinis skirstytuvas 6 s p80 a1a1a1a1a1a1gkz1

    15013119972373
    532,34 €
    Su mokesčiais
    pristatymas per 5-9 darbo dienas
    Kiekis

    Aprašymas
    SEKCIJŲ HIDRAULINIS SKIRSTYTUVAS P80, PRISTATYMAS SU JUNGČIŲ RINKINIU Gamyba:

    Originalus prekės ženklo Badestnost Bulgaria gaminys, simbolis: 06P80 6xA1 GKZ1, simbolis: 1.10.10.060.3

    Taikymas:

    Plačiai naudojamas žemės ūkyje, ūkyje, sodininkystėje miškininkystėje, statyboje ir plačiai pramonėje.

    Platintojas pritaikytas įvairių tipų mašinoms, tokioms kaip: žemės ūkio technikos, traktoriai, purkštuvai, turai, ciklopai, HDS krautuvai, statybinės mašinos, krautuvai, ekskavatoriai, šlavimo mašinos, pramoninės mašinos ir kiti hidrauliškai valdomi įrenginiai .

    Techniniai duomenys:

    Rekomenduojamas alyvos srautas sistemoje: 0 - 80 l/min. Valdymo pavyzdys: šešios dvigubo veikimo pavaros.

    Galimybė nuosekliai prijungti prie esamos sistemos (reikalinga slėgio įvorė).

    Valdymas:

    Visos svirtys yra trijų padėčių (1 - 0 - 2), spyruoklinės, t. y. jos grįžta į vertikalios savaime:

    Padėtis 0 neutrali (svirtis nustatyta vertikaliai), pavaros stūmoklio strypas stovi - alyva eina į perpildymą.

    1 darbo padėtis (svirtis nustatyta į priekį įstrižai), pavaros stūmoklio strypas išsitraukia.

    2 darbo padėtis (svirtis nustatyta kampu į galą), pavaros stūmoklio strypas atsitraukia.

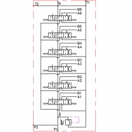
    Dešinėje – siūlomo kolektoriaus hidraulinė schema:

    Slėgio diapazonas:

    Maksimalus tiekimo slėgis: 250 barų

    Maksimalus grįžtamasis slėgis: 50bar

    Maksimalus slėgis sekcijose: 300bar

    Perpildymo vožtuvo atsidarymo slėgis didėja proporcingai didėjant srautui:

    180 barų esant 20 l/min.

    190 barų esant 40 l/min.

    200 barų esant 60 l/min. 210 barų, esant 80 l/min .

    AGRICOLA rekomenduojamos alyvos rūšys:

    Skiediklis, aukštos kokybės alyva: LOTOS AGROL BOXOL 26

    Tirštesnė, aukštos kokybės alyva: FUCHS AGROFARM HYDRATEC HVI 46

    Rekomenduojamas alyvos temperatūros diapazonas:

    Leidžiama aplinkos temperatūra: -40 C iki + 60 C

    Leistina alyvos temperatūra: -15 C iki +80 C

    Jungtys su sandarikliais (sriegiais):

    Maitinimas iš siurblio (P): BSP 1/2'' sriegis - M22x1,5

    Grįžimas į baką (T ): BSP 3/4'' sriegis - M27x2

    Išvadas į sekcijas (A, B): BSP 1/2' sriegiai ' - M22x1,5

    Prekė detaliau
    15013119972373
    Nauja

    Charakteristikos

    Gamintojas
    Badestnost
    Detalės numeris
    A1.10.10.060.3
    Produkto svoris su vienetine pakuote
    16 kg